电话:梁经理:18703736676
电话:0373-8793988:0373-8419288
邮箱:18703736676@163.com
地址:长垣市长恼工业区ag九游会j9集团路
分公司地址:洛阳市西工区洛阳工业园区衡山路100号

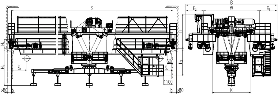
本起重机带有可旋转、又可伸缩的电磁挂梁,用于钢厂、船厂、港口、堆场和仓储等室内或露天的固定跨间,装卸及搬运钢板、型钢、盘卷等物料。特别适用于吊运不同规格且需水平旋转的场合,能够根据所吊物料的规格(不同厚度、长度、张数等)和重量,电动调整电磁铁间距及无级调节电磁铁磁力。根据用户要求可提供:各机构的调速(1:10或更大)、超载及报警、遥控、PLC控制及故障检测、显示、记录和打印系统等。 (以下参数为室内用)
The crane has slewing telescopic electromagnetic carrier-beam;is applicable to the fixed span at indoors or outdoors of steel mill,shipyard,port,yard and storage,etc.It is used for loading,unlo ading and carrying steel plate,profile steel,and spool.etc.It is especially applica ble to lift material of different specifications and which needs horizontal rotation.The spacing of electromag net can be adiusted electrically and magnetic force of electromagnet can be adjusted through infinitely variable control according to the specifications(different thickness,length and pieces,etc.)and weight of the lifted material.The followings can be supplied according to the user’s requirements:speed governing(1:10 or larger)of the mechanisms,overload&warning,remote control,PLC control,failure de tection,display,record and printing system,etc.(the data below is used for indoor).

电话:梁经理:18703736676
电话:0373-8793988:0373-8419288
邮箱:18703736676@163.com
地址:长垣市长恼工业区ag九游会j9集团路
分公司地址:洛阳市西工区洛阳工业园区衡山路100号
