电话:梁经理:18703736676
电话:0373-8793988:0373-8419288
邮箱:18703736676@163.com
地址:长垣市长恼工业区ag九游会j9集团路
分公司地址:洛阳市西工区洛阳工业园区衡山路100号




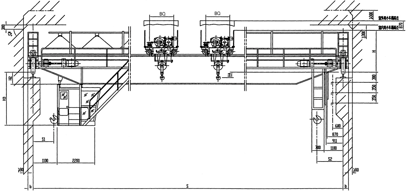
本起重机有两台小车,两小车可以同时使用,也可以单独使用,适用于厂矿企业的车间或露天仓库吊运长件材料(木材,纸筒,管封,棒材)。
Double—trolley Bridge Crane
With two trolleys that works simultaneously or separately,this crane is suitable to lift long materials(wood,paper tube,pipe and bar)in workshops or outdoor stores in factories and mines.
注:1.大车导电有角钢和安全滑触线两种形式,供选择。
2.操纵形式有室操(分开式和闭式),地操和遥控三种,供选择。
Notes:
1.Power supply for the main vehicle can be either through angle steel or safety slide wire.
2.Operation can be done in the cabin(open-type and closed-type),on the ground or through remote control.
电话:梁经理:18703736676
电话:0373-8793988:0373-8419288
邮箱:18703736676@163.com
地址:长垣市长恼工业区ag九游会j9集团路
分公司地址:洛阳市西工区洛阳工业园区衡山路100号
